Rare opportunity.
New to market is an opulent 7 bedroom villa currently under construction and key ready in the summer of 2025.
Located in lower Riviera del Sol, Mijas Costa in a tranquil street and within a very short walk to R11 Health Club, all amenities, the boardwalk and beaches.
This brand new villa will be is a true embodiment of luxury and modern living. Boasting 180 degrees sea views from all levels especially the expansive roof terrace.
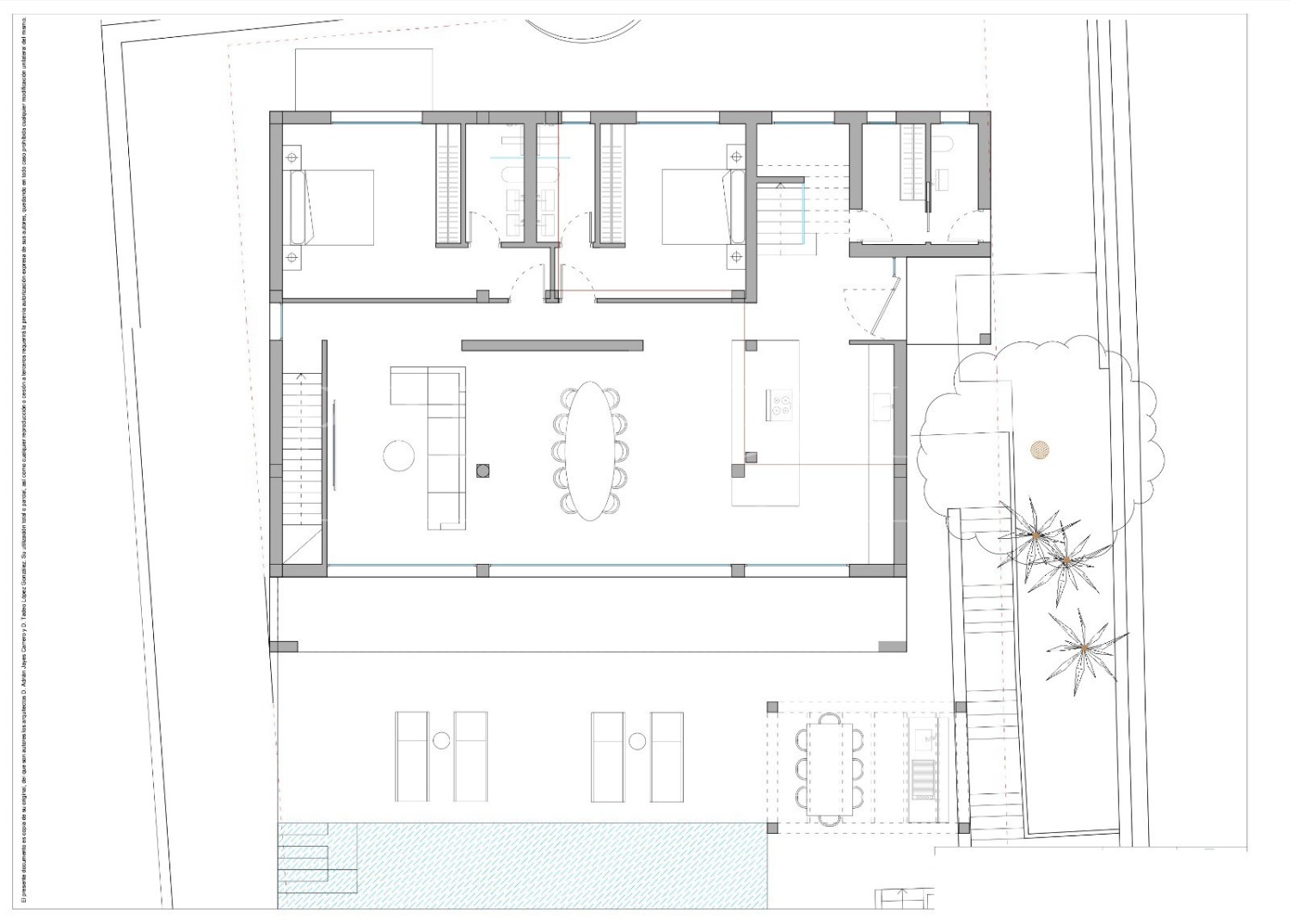
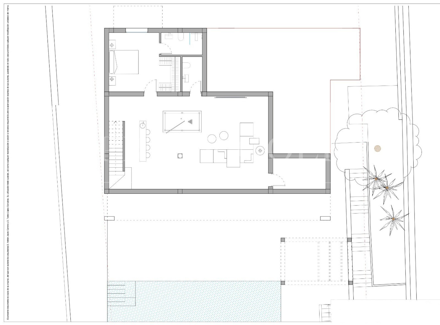
Spanning an impressive built area of 621m² on a 708m² plot the villa features seven spacious bedrooms and nine elegantly designed bathrooms. The interior space of 409m² is complemented by 212m² of terraces providing ample room for relaxation and entertainment. The villa is thoughtfully designed with modern amenities including air conditioning, ensuring comfort throughout the year. The basement is a versatile space, illuminated by light wells, and includes an additional bedroom and bathroom. It also features a bar area, a pool table, and a cinema area, offering endless possibilities for customisation to suit your lifestyle.
Enjoy the serenity of the Infinity swimming pool with gorgeous sea views. The outdoor kitchen and seating areas provide the perfect setting for al fresco dining and entertaining. The triple garage, capable of housing three cars adds to the convenience and functionality of this exceptional villa.
Located near essential amenities, transport links, schools, shops, and golf courses, this villa offers the perfect balance of accessibility and seclusion. Its peaceful setting, combined with its proximity to the vibrant towns of La Cala de Mijas and Marbella makes it a rare gem on the Costa del Sol. This villa offers luxury, comfort, and breathtaking views in one of the most sought-after locations in Spain.
Important notes:
An option exists to work with the owners to make design changes at this stage
This villa allows a 58% build ratio to the land size.
Subject to 10% VAT
7 bed Villa
- €2.200.000
- ENQUIRE TODAY < Back
Bedrooms
7Bathrooms
9Living Area (Approx)
621sq mPlot Surface (Approx)
920sq mProperty Description
Features
Amenities near
Transport near
Air conditioning
Basement
Solarium
Brand new
Private terrace
Sea view
Panoramic view
Close to sea / beach
Close to golf
Uncovered terrace
Close to shops
Close to town
Close to schools
Highlights
Number of Floors: 3
Pool: Private
Garden: Private
Construction year: 2025










